Bydgoszcz, Bartodzieje

Mieszkanie na sprzedaż

Opis nieruchomości

Na nowych właścicieli czeka zadbane mieszkanie na Bartodziejach przy Al. Powstańców Wielkopolskich 57.
Jest bardzo funkcjonalne, w pełni rozkładowe, więc idealne dla rodziny lub pod wynajem.

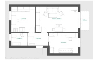
W skład mieszkania wchodzi:

* salon (20m2)  duży, jasny z balkonem to komfortowa przestrzeń na wspólne spędzanie czasu przez domowników i ich gości
* sypialnia (12m2) to enklawa spokoju i wyciszenia 
* kuchnia (9,5m2) przestronna, dająca ogromne możliwości aranżacyjne
* łazienka (4m2) z dużą wanną i oknem to kolejny atut mieszkania
* przedpokój (4,5m2) wystarczający na zostawienie odzieży wierzchniej

Mieszkanie 2-pokojowe o powierzchni 49 m2. Mieści się na 3 piętrze w czteropiętowym bloku z roku 1964. Czynsz na jedną osobę wynosi około 440 zł. Woda podgrzewana poprzez junkers.

Niewątpliwymi atutami mieszkania jest to, że

* jest wolne od zaraz
* w ekspozycji wschód - zachód
* jest w pełni rozkładowe
* w łazience znajduje się okno
* kuchnia jest dużym, oddzielnym pomieszczeniem
* pokoje są bardzo ustawne
* parkiet na podłodze jest w świetnym stanie
* dookoła znajduje się mnóstwo sklepów, targowisko, szkoły, szpital, przystanki autobusowe. 

Podsumowując. Atrakcyjne mieszkanie w świetnej lokalizacji.

Zapraszam na prezentację.
Aleksandra Waliszewska
tel. 798 444 117

Przeprowadzę Cię przez całą procedurę zakupu.

Nieruchomość tylko w ATW Nieruchomości
Klucze w biurze.

Nota prawna

Opis oferty zawarty na stronie internetowej sporządzany jest na podstawie oględzin nieruchomości oraz informacji uzyskanych od właściciela, może podlegać aktualizacji i nie stanowi oferty określonej w art. 66 i następnych K.C.

Szczegóły oferty

Symbol oferty ATW-MS-39
Powierzchnia 49,00 m²
Liczba pokoi 2
Piętro 3
Rodzaj budynku blok
Standard
Opłaty w czynszu administracja, CO, Części wspólne, fundusz remontowy, ogrzewanie, woda ciepła, wywóz śmieci
Opłaty wg liczników gaz, prąd
Liczba pięter w budynku 4
Piwnica 3,00 m²
Stan lokalu do odnowienia
Stan prawny Spółdzielcze własnościowe
Mies. czynsz admin. 440 PLN
Okna PCV
Instalacje dobre
Balkon średni
Liczba balkonów 4
Rok budowy 1964
Widok na inne budynki
Gaz tak - miejski
Woda ciepła - miejska
Dojazd asfalt
Otoczenie zabudowa mieszana
Ogrzewanie C.O. Z SIECI MIEJSKIEJ
Usytuowanie dwustronne
Klucze tak

Pomieszczenia

Powierzchnia pokoi 20, 12 m2
Podłogi pokoi parkiet
Typ kuchni kuchnia jasna, osobno
Rodzaj kuchni oddzielna i widna
Powierzchnia kuchni 9,5 m2
Podłoga kuchni panele podłogowe
Wyposażenie kuchni szafki kuchenne, stół, kuchenka gazowa
Typ łazienki razem z wc
Liczba łazienek 1
Powierzchnia łazienki 4 m2
Glazura łazienki starszego typu
Podłoga łazienki kafle
Wyposażenie łazienki umywalka, wanna, WC
Liczba przedpokoi 1
Powierzchnia przedpokoi 4,5 m2
Podłoga przedpokoi parkiet

Kalkulator kredytowy

PLN
%
Wysokość raty

Kalkulator kosztów

PLN
PLN
PLN
PLN
PLN
PLN
%
PLN
Podatek od czynności cywilno-prawnych
Taksa notarialna (opłata notarialna)
VAT od taksy notarialnej (opłaty notarialnej)
Wniosek do WKW
VAT od wniosku do WKW
Prowizja agencji nieruchomości
VAT od prowizji agencji nieruchomości
Wypisy aktu notarialnego - około
RAZEM (cena + opłaty)

Podobne oferty

mieszkanie na sprzedaż - Bydgoszcz, Bartodzieje

mieszkanie na sprzedaż

Bydgoszcz, Bartodzieje
3 pokoje 59,50 m2 5 966,39 zł/m2
mieszkanie na sprzedaż - Bydgoszcz, Kapuściska

mieszkanie na sprzedaż

Bydgoszcz, Kapuściska
3 pokoje 47,00 m2 6 361,70 zł/m2
mieszkanie na sprzedaż - Bydgoszcz, Bartodzieje

mieszkanie na sprzedaż

Bydgoszcz, Bartodzieje
2 pokoje 37,90 m2 6 464,38 zł/m2
mieszkanie na sprzedaż - Bydgoszcz, Fordon

mieszkanie na sprzedaż

Bydgoszcz, Fordon
1 pokój 39,00 m2 6 641,03 zł/m2

Napisz do nas

Proszę wypełnić to pole
Proszę wypełnić to pole
Proszę wypełnić to pole
Proszę wypełnić to pole
Trwa wysyłanie...

Ta strona wykorzystuje pliki cookies w celach statystycznych oraz w celu dostosowania naszych serwisów do indywidualnych potrzeb klientów. Zmiany ustawień dotyczących plików cookie można dokonać w dowolnej chwili modyfikując ustawienia przeglądarki. Korzystanie z tej strony bez zmian ustawień dotyczących cookies oznacza, że będą one zapisane w pamięci urządzenia.

rozumiem